Interaktywna mapa

Złożono wniosek na budowę świetlic


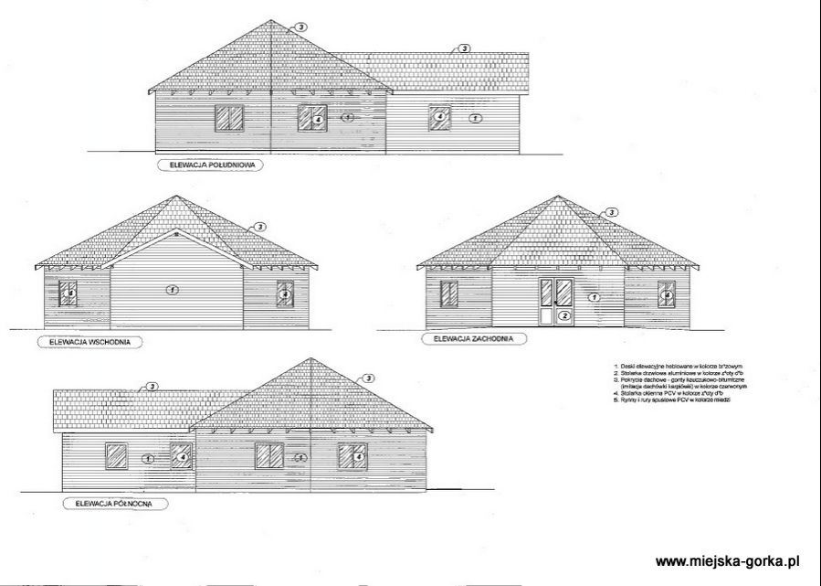
Pod koniec marca gmina złożyła do Urzędu Marszałkowskiego wniosek o dofinansowanie z Programu Rozwoju Obszarów Wiejskich na lata 2014-2020 budowy świetlic wiejskich w Dąbrowie i Gostkowie wraz z zagospodarowaniem terenu wokół nich. Gmina ubiega się o kwotę pół miliona złotych.

Koszt budowy wyceniono łącznie na 750 tys. zł, rozstrzygnięcie konkursu nastąpi wczesną jesienią.


IAP Portal - (C)opyright by TELEKOM.pl Sp. z o.o.